Building Features |
|||
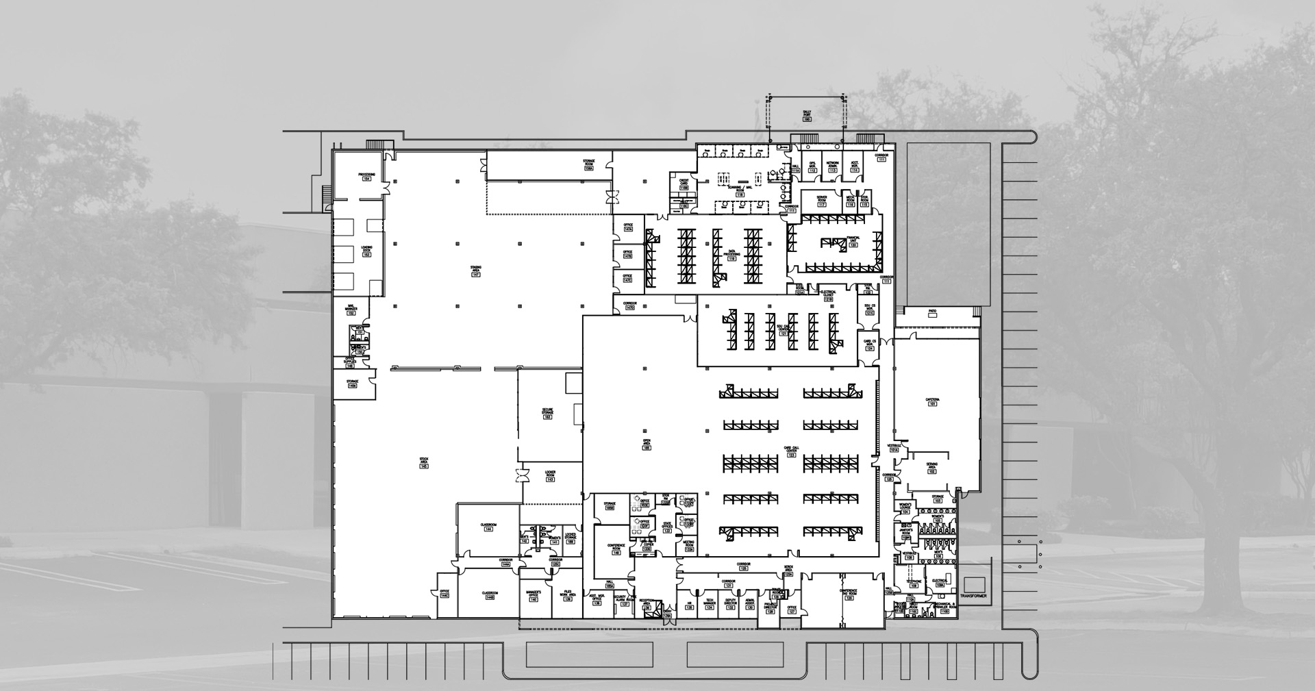
| 13526 Nacogdoches is a 67,619 square foot office service center located in northeast San Antonio. It was developed by Hines Industrial in 1982 as a build-to-suit for JC Penny to house a regional check and credit card processing operation. The building was subsequently occupied by Alliance Data Systems and in 2015, the current occupant purchased the building for a call center and secured mail handling facility. |
|||
Property DetailsTotal Building Size 67,619 sf Current Space Distribution Office Space: 42,576 sf, ≈63% of total Air-Conditioned Warehouse: 25,043 sf, ≈37% of total HVAC The building is 100% air-conditioned (≈224 tons of cooling capacity) ≈23% of the Building's HVAC capacity has been replaced within the last 5 years ≈56% of the Building's HVAC capacity has been replaced within the last 8 years Dock Doors There are 3 dock high doors with load levelers and room for 3 full size trailers Clear Height The clear height to the bottom of the roof joist is 15.5 feet. Parking Ratio 5.25 /1k RSF (may be expandable) Utilities 1,600 Amp Electrical Service |
Improvements since 2015Tenant Improvements to call/service center: ≈$1M New EPDM Membrane Roof: ≈$400k Bathrooms Upgraded and made ADA Compliant: ≈$250k Installed CAT Model 300 Caterpillar Diesel Generator · 300 kw capacity · 3 phase/480 volt · 660-gallon tank LocationNacogdoches Road is one of the region's main streets carrying over 31k cars per day. With two lanes in each direction and a center turn lane, Nacogdoches Road provides quick access to many important regional highways and destinations, including:
|
||
| For Sales & Leasing Information | ||||
| Paul G. Fagan, SIOR Executive Vice President pfagan@reocsanantonio.com Direct/Mobile 210 524 1304 |
![]() |
|||





